扫地僧站群提供技术支持

成浩信息网

  • 首页
  • 知识
  • 科普
  • 经验
  • 百科全书
  • 经验分享
  • 科普
  • 新闻

三相电表接入总闸怎么接线 三相四线电表接线图

2026-01-17 00:51 15K 1

一、三相电表接入总闸怎么接线

1、三相电表直接接入式:

直接接入式也称为直通式接线,是在负载功能电表允许的范围内就可以直接接入,也就是电表的电流规格能够满足用户的需求,就可以使用该方法。(1)1、2称之为U,是三相四线电表的火线,接到A相进线端,3接到A相出线端;

(2)4、5称之为V,是三相四线电表的火线,接到B相进线端,6接到B相出线端;

(3)7、8称之为W,是三相四线电表的火线,接到C相进线端,9接到C相出线端;

(4)A、B、C三相出线端接负载;

(5)10接零线,接后面的接线。

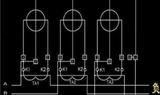
2、三相电表经互感器接入式:

三相电表测量大电流的单相电路的用电量时,因为线路流过的电流很大,例如300-500A,不可能采用直接接入法,应使用电流互感器进行电流变换,将大的电流换成小的电流,即电能表能承受的电流,然后再进行计量。(1)1、4、7要接到电流互感器二次侧的S1端,就是电流的进线端;

(2)3、6、9要接到电流互感器二次侧的S2端,就是电流的出线端;

(3)2、5、8分别接到A、B、C三相电源;

(4)10是接零线,一般为了安全起见,一定要将电流互感器S2端连接后接地。

注意事项: 各电流互感器的电流测量取样必须与其电压取样保持同相,即1、2、3是一组;4、5、6 是一组;7、8、9 是一组。

3、三相电表经电流、电压互感器接入式:

三相电表测量大电流和大电压时,因为电压和电流很大,不能直接接入,应使用电压和电流互感器进行电压、电流变换,把大电压、大电流换成小电压、小电流,即电能表能承受的电压、电流,再进行计量。

(1)1、4、7要接到电流互感器二次侧的S1端,就是电流的进线端;

(2)3、6、9要接到电流互感器二次侧的S2端,就是电流的出线端;

(3)2、5、8分别接到电压互感器;

(4)10要接零线,并且与电压互感器一起接地;

二、华立三相四线电表正确接法

华立三相四线电表的正确接法如下:

1. 首先,需要确认电表的额定电压和额定电流,以及所要接入的电路的电压和电流。

2. 根据电表额定电流和电路电流的大小,选择合适的电线截面积。一般来说,三相四线电表的电线截面积应该大于等于电表额定电流。

3. 将电表的U、V、W三个相线分别接入三相电路的对应相线上,接线顺序可以随意。

4. 将电表的N线接入电路的零线上,接线顺序需要与三个相线的接线顺序保持一致。

5. 确保所有接线牢固可靠,无松动现象。

6. 对电表进行功能测试,确保各项功能正常。

需要注意的是,华立三相四线电表的接线需要符合国家标准和安装要求,否则可能会影响电表的测量精度和安全性。为了保证接线质量,最好由专业的电工进行接线。

三、三相四线电表零线怎么接

1、三相四线电表的零线接法如下:

2、首先,将电表的零线接到电源系统的中性线上,通常中性线是蓝色的。

3、然后,将电表的三个相线分别接到电源系统的三个相线上,通常相线是红、黄、蓝三种颜色。

4、最后,将电表的接地线接到接地系统上,通常接地线是绿色或者黄绿相间的。
需要注意的是,在接线之前,一定要确保电源系统已经切断电源,并且在接线过程中要按照正确的接线方法进行操作,以免发生安全事故。如果您不熟悉电气知识,建议您请专业人士进行操作。

四、三相四线电表正确与错误接法

三相四线电表连接固定,正确接法应该是三相四线系统中AB、BC、CA三个相线依次连接电表的A、B、C三个相位线,同时连接电表的下行线PE线和零线N线。
如果错误接法,可能会导致电表不工作或者测量结果偏差较大。
为了避免错误接法,应该在接线前仔细阅读电表说明书,或者请专业电工安装。

五、三相四线电子式电能表如何安装接线喃

三相四线电表市面上常见的2种接法,一种是电流比较小的情况下直接接入,一种是电流过大时需要加互感器。

1、直接接入:147三个点和258三个点对应连在一起,上面有连接片。最后的10接零线。

三相四线电表接线图

2、带有电流互感器的接线:电表的147三个点接三个电流互感器的S1点,369三个点接电流互感器的S2点,并且三个S2连一起接地。258接ABC三相,最后一个点接零线。注意这个时候接点上是没有连接片的。

成浩信息网
成浩信息网汇聚了各行各业大量的知识内容供给大家学习参照,相信知识改变命运,欢迎光临百科分享,带给你不一样的体验。有价值的参考答案。
推荐阅读
  • 赛尔号勇者之塔怎么返回上一赛尔号勇者之塔 勇者之塔点亮图标
  • 11月武夷山茶博会如何报名 武夷山茶博会
  • 行星减速机原理 行星减速机
  • 浙江电视台女主持人新苗的资料 浙江女主持
  • 巴萨和大巴黎哪个更厉害 巴黎圣日耳曼vs巴萨
  • 豫a微货过郑州高速免费么 郑州公交免费一个月
  • 虎牙怎么领取cfm击杀图标 cf爆头图标
  • 2022意大利杯积分排名榜 2022世界杯意大利出局原因
  • 陶土板幕墙安装大概一平方多少钱 陶土板幕墙厂家
  • 葡萄牙射手榜 世界杯葡萄牙队积分榜
评论 (1)
取消
  • 成浩信息网

    本文《三相电表接入总闸怎么接线 三相四线电表接线图》希望能帮助到你!

    2026年01月
热门文章
ipadmini2是第几代的 ipadmini2
137
红豆电信167号段怎样查话费 四川电信话费查询
164
世界上最大货轮的吨位是多少 世界上最大的货轮
166
关岛距离中国多少公里 中国与美国距离多少公里
151
丰田霸道2700中东版贷款首付多少钱 丰田霸道2700中东版
106
加盟和连锁什么区别 加盟连锁店注意事项
158
乒乓球双打换法规则讲解 乒乓球双打比赛进行到决胜局的时候发球规则
120
移动手机兑换积分方法步骤 移动积分商城兑换
106
卖月饼群发消息怎么写 喜悦月饼批发
165
《樱兰高校公关部》中镜夜喜欢春绯吗 樱兰高校男公关部真
138
文章推荐
荐 澳洲酸枝缺点 澳洲酸枝木是红木吗
荐 2021辽宁男篮球员详细资料 2021辽宁春晚节目单
荐 宇宙骑士最强形态 宇宙骑士剧场版
荐 匈牙利签证怎么办理 匈牙利签证
荐 12月一日执行阶梯电价吗 12月1日起电价上浮
荐 河南省信阳学院2023专升本通知书发放时间 河南专升本录取时间
荐 2018年世界杯巴西vs德国比分 2018世界杯8进1决赛比分
荐 厦门康桥中学是有住宿的学校吗 厦门岛内住宿
荐 公共厕所收费怎么处罚 我妈是公共厕所
荐 22年杭州亚运会几月几号开 2022杭州市亚洲运动会开幕式时间
荐 为什么14岁的人能参加高考 14岁初中生考进清华
荐 友谊地久天长,和奇异恩典是一首歌吗 奇异恩典英文版
荐 大熊猫丫丫是哪个国家养的 丫丫熊猫怎么回事
荐 exe游戏怎么在安卓手机上玩 安卓4.0游戏
Copyright © 2018-2026 成浩信息网. All rights reserved. Designed by 扫地僧站群技术支持. ICP备案号
  • 天津市分站
  • 泰州市分站
  • 友情链接
  • 扫地僧站群
  • SEO学习网
    • 首页
    • 知识
    • 科普
    • 经验
    • 百科全书
    • 经验分享
    • 科普
    • 新闻